提交咨询信息
咨询邮箱:nesfovalve@163.com
我们收到后将会在24小时内回复您
全站搜索
D71X-10P卫生级对夹蝶阀是一种专为卫生工艺流体控制而设计的阀门。阀体、阀杆等关键部件多采用304不锈钢材质,具有良好的耐腐蚀性和耐高温性。密封材料选用食品级硅胶,无毒、无味,符合卫生级要求。其具有结构紧凑、易于清洗、操作灵活、密封性能好等特点。广泛应用于食品、饮料、制药、化妆品等需要高卫生标准的行业中。
| 产品型号 | D71X-10P |
|---|---|
| 阀体材质 | 304不锈钢 |
| 阀板材质 | 304不锈钢 |
| 衬胶材质 | 硅橡胶 |
| 公称压力 | ≤1.0Mpa |
| 适用介质 | 水、气、油品等 |
| 适用温度 | ≤100℃ |

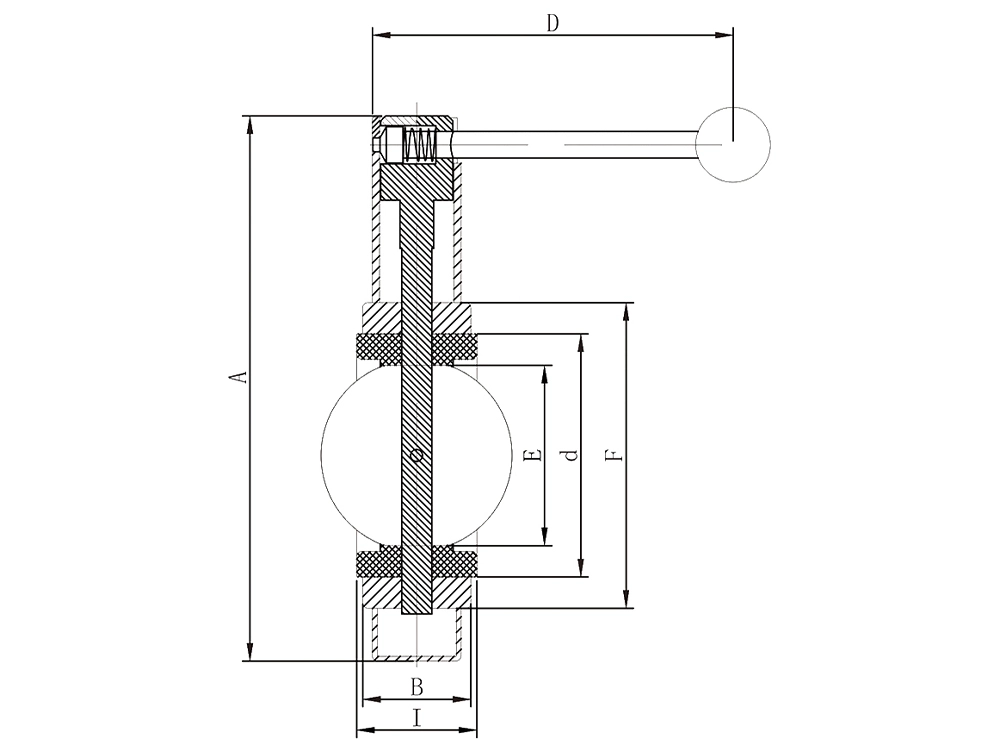
| 通径 | I | B | E | d | F | A | D |
|---|---|---|---|---|---|---|---|
| DN25 | 32 | 28 | 25.5 | 42 | 60 | 131 | 111 |
| DN32 | 38.5 | 36 | 30.5 | 54 | 73 | 157 | 130 |
| DN40 | 41 | 38 | 37.5 | 62 | 80 | 164 | 130 |
| DN50 | 44 | 41 | 48 | 72 | 94 | 190 | 148 |
| DN65 | 46.5 | 44 | 64 | 87 | 108 | 204 | 148 |
| DN80 | 49 | 45 | 78 | 96 | 126 | 223 | 148 |
| DN100 | 53.5 | 50 | 96 | 119 | 158 | 263 | 148 |
| DN125 | 59 | 55 | 121 | 145 | 173 | 288 | 218.5 |
| DN150 | 61 | 55 | 148 | 182 | 208 | 311 | 248 |
第一步:发送采购清单
请将采购清单发邮件到 nesfovalve@163.com,电话/微信:+86-13382208259,WhatsApp:+852-90445535。
第二步:提供报价和选型
收到客户采购清单后,我公司将为客户提供阀门报价「价格清单」和选型「阀门型号」服务。
第三步:商定具体事宜
具体事宜商定:交货期、特殊要求等细节确认。
立即完善信息,为您提供专属服务!